U.S. EPA Universal Hazardous Waste Manifest Forms

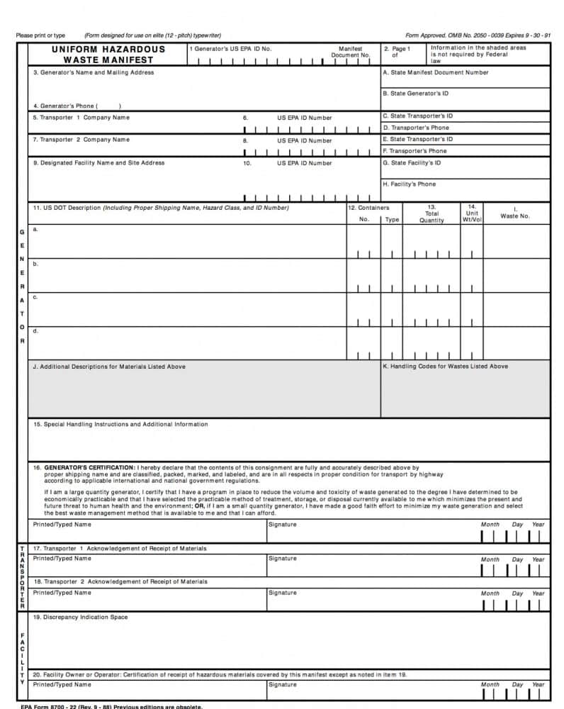
If you are looking for the EPA's Uniform Hazardous Waste Manifest forms, please find them below. Uniform Hazardous Waste Manifest and Uniform Hazardous Waste Manifest Continuation Sheet These forms from the Appendix to 40 CFR Part 262 in the federal hazardous waste regulations are EPA's hazardous waste manifest and continuation sheet. The actual manifest and continuation sheet are 6-page forms, which must be obtained and distributed according to the requirements in §262.21–§262.23.

universal hazardous waste manifest that must be completed by generators

Order Summary